Réalisations
L’agence
Prix & publications
Contact
Close
Index
Partager
Navigation principale
Réalisations
L’agence
Prix & publications
Contact
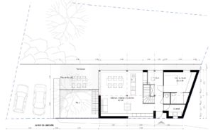
05 PLAN DU RDC
Partager