projet
PROGRAMME : Loft
LIEU : Teurthéville-hague (50)
CLIENT : PRIVE
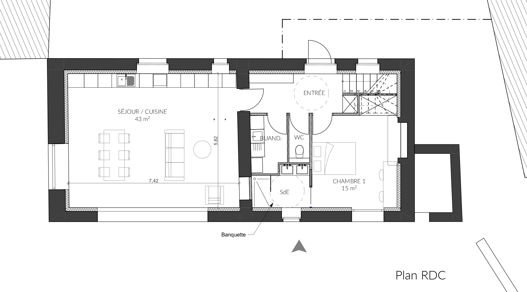
SURFACE : 120 M2
LIVRAISON : 2023
Au beau milieu des champs, un couple décide d’aménager une ancienne grange en loft pour y séjourner pendant les vacances. La pièce à vivre, installée dans un grand volume en double hauteur, s’ouvre plein cadre sur le paysage typique du bocage au moyen de grandes baies qui s’effacent à la belle saison pour faire disparaître la frontière entre intérieur et extérieur.

Cet espace, comme le reste de la maison, fait la part belle aux matériaux bruts (bois, pierre), dans une écriture architecturale à la fois rustique et contemporaine.
Une attention particulière est également apportée sur le choix des matériaux de construction pour garantir un impact écologique limité et une bonne qualité de l’air intérieur, en privilégiant les produits naturels.
IMAGES

















